Usługi Projektowe
Profesjonalne projekty nawierzchni
z kostki brukowej
Zastanawiają się Państwo nad wyborem kostki brukowej, jaki kolor i kształt kostki wybrać, jak zaprojektować ścieżki, chodniki, tarasy tak aby harmonizowały z otoczeniem domu. Podpowiadamy jak zaaranżować nawierzchnię wokół domu, tak aby Państwa posesja uzyskała wyjątkowy i niepowtarzalny charakter. Zrealizujemy Państwa wizje i pomysły. W oparciu o wiedzę i doświadczenie przygotujemy indywidualny projekt ułożenia kostki wraz z wyliczeniem ilości potrzebnego materiału.
Zamów trójwymiarową wizualizację, która w sposób realistyczny pokaże przyszły wygląd Twojej posesji ze wszystkimi szczegółami.
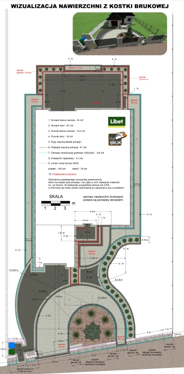
Projekty 2D
Projekt nawierzchni z kostki brukowej (rzut z góry) w kolorach, pełna specyfikacja materiałowa, zwymiarowane rysunki.
PROJEKT 3D (wizualizacja)
Projekt nawierzchni z kostki brukowej (rzut z góry) w kolorach, pełna specyfikacja materiałowa, zwymiarowane rysunki.






